McCleary Hill
Click the icons below to access…
McCleary Hill Development
Overview
- Using Gateway Crossing as a model, HHA is creating a new mixed income community on a newly acquired site in a Community of Opportunity in the City of Hagerstown
- 140 Public Housing Units will be transferred to the new site known as McCleary Hill.
- The existing Noland Village will have reduced density and be redeveloped as a mixed income community.
- 110 units at the existing Noland Village site will be rehabilitated and 140 units will be demolished.
- All residents will be relocated in accordance with the Federal Uniform Relocation Act and those that are eligible will have the opportunity to return to the revitalized site.
- Establishing a comprehensive self-sufficiency program for residents of the revitalized area.
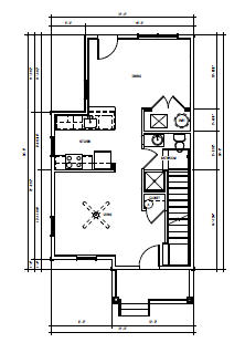
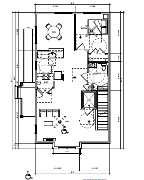
Home Plans and Unit Layouts
Below you can view floor plans and unit layouts of the homes that will be built in the McCleary Hill community. There are 7 proposed home plans.
Click the images to enlarge or view as a slideshow.
Click the buttons to view unit presentations.
Home A
Home B
Home C
Home D
Home E
Home F
Home G
Site Plans Gallery
Below you can view plans of what the McCleary Hill site will look like, as well as browse the plan for the community center that will reside in the McCleary Hill development.
Hover over the right side of the photo and click the arrow to view the next slide in the gallery. Click the center of the photo to enlarge it.
McCleary Hill Development
McCleary Hill Site Plan
McCleary Hill Community Center
Drone Construction Progress Video